Breeze on your tender fields Karuizawa.

メビウスブレイン軽井沢

8,480万円

ゴルフ場に隣接する静かな環境。碓氷軽井沢I.Cからもアクセス良好です。
温泉大浴場(露天風呂)付きリゾートマンションで癒しの時間を過ごせます。

お部屋は温泉大浴場のあるSOUTH ARENA棟  2階建の1階部分です
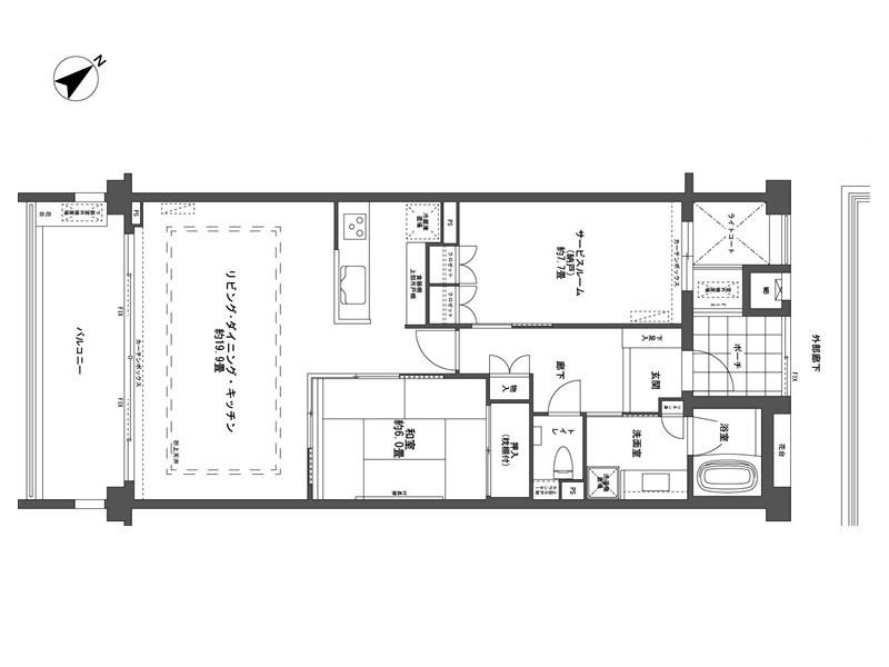
間取図

写真のクリックで その他の画像もご覧になれます

写真のタップで その他の画像もご覧になれます

南西側に解放された明るく広いLD
クロゼットとAC付のサービスルーム
こちらが大浴場の様子です

写真のタップで その他の画像もご覧になれます

物件概要
所在
北佐久郡軽井沢町大字長倉
交通
北陸新幹線 軽井沢駅より約2.5Km
道路
-
用途地域
第1種住居
土地面積
-
地目
-
地勢
平坦地
設備
公営水道・浄化槽・中部電力・LPG集中方式
構造
鉄筋コンクリート造地下1階地上2階建
専有面積
<壁芯>75.99㎡(22.98坪)  バルコニー12.60㎡(3.81坪)
間取
2LDK
建築年月
H20年6月
施工会社
(株)加賀田組
管理会社
(株)東急コミュニティー
権利
所有権
取引態様
媒介

備考

  • 向き:南西向き
  • 管理費:27,500円/月・修繕積立金:15,200円/月・浴場運営費:11,000円/月  合計:53,700円
  • 露天風呂付大浴場・ゲストルーム、ペット飼育可(規約に準ず)
  • 長野県景観条例及び軽井沢町自然保護対策要綱適用
  • 本資料と現況が異なる場合は現況を優先致します
お問い合わせフォーム

下記フォームに必要事項を入力後、確認ボタンを押してください。

不動産名称
価 格
タイプ
ご用件
お名前 ※必須
ご住所
電話番号(半角)
Mail(半角) ※必須
連絡方法 Eメール  電話  いずれも可
お問い合わせ内容

 

※上記の個人情報に関して、ご本人の同意なく、物件紹介以外の目的に使用することはございません。

会社名 ページ先頭へ

本社  東京都千代田区二番町5-2-3055
TEL.03(6256)8822・FAX.03(6256)8567
支店  長野県軽井沢町軽井沢東7-22
TEL.0267(42)4111・FAX.0267(42)3155

SANWA GROUP since1967

Copyright ©2000- Sanwa Jisho. All Rights Reserved.