Breeze on your tender fields Karuizawa.

追 分

14,300万円

周辺にはテニスコートやゴルフ場。心身ともにリフレッシュできるロケーション。
環境と家計にやさしい充実の設備の新築建物です。

周辺環境と調和したデザイン  落ち着いた空間に建つ安定の新築平家建て
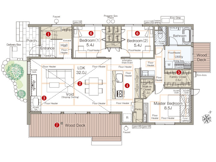
建物平面図・敷地形状図等

写真のクリックで その他の画像もご覧になれます

写真のタップで その他の画像もご覧になれます

モダンで温かみのある色調のLDKです
スタイリッシュなアイランドキッチン
W.I.C付きのマスターベッドルーム

写真のタップで その他の画像もご覧になれます

物件概要
所在
北佐久郡軽井沢町大字追分
交通
しなの鉄道 信濃追分駅より約2.9km
道路
南側 幅員約3.5m~4.5m  西側 幅員約5m~5.1m
用途地域
第一種低層住専  建蔽率20%  容積率20%
土地面積
1,018㎡(307.94坪)
地目
地勢
平坦
設備
公営水道・浄化槽・大和ハウス工業・LPG
建物面積
123.5㎡(37.35坪)
構造
木造平家建
間取
3LDK
建築年月
R8年1月
高さ制限
10m以下・2階建て以下
後退距離
道路後退5m?・隣地後退3m?
権利
所有権
取引態様
媒介

備考

  • 電気:大和ハウス工業(他の小売電気事業者の選択も可能です)
  • エコワン、薪ストーブ、床暖房、、エアコン4台、ウッドデッキ
  • カースペース4台、電気自動車充電用コンセント、長期優良住宅認定 
  • 長野県景観条例及び軽井沢町自然保護対策要綱適用
  • 本資料と現況が異なる場合は現況を優先致します
お問い合わせフォーム

下記フォームに必要事項を入力後、確認ボタンを押してください。

不動産名称
価 格
タイプ
ご用件
お名前 ※必須
ご住所
電話番号(半角)
Mail(半角) ※必須
連絡方法 Eメール  電話  いずれも可
お問い合わせ内容

 

※上記の個人情報に関して、ご本人の同意なく、物件紹介以外の目的に使用することはございません。

会社名 ページ先頭へ

本社  東京都千代田区三番町7-13-305
TEL.03(6272)3331・FAX.03(6272)3332
支店  長野県軽井沢町軽井沢東7-22
TEL.0267(42)4111・FAX.0267(42)3155

SANWA GROUP since1967

Copyright ©2000- Sanwa Jisho. All Rights Reserved.