Breeze on your tender fields Karuizawa.

中軽井沢② (長倉北公園近隣)

21,800万円

中軽井沢駅から徒歩9分の住宅地にありながら、このスケール感。
広大な敷地で優雅に寛ぐ。大型の建築計画にも対応可能な魅力的な敷地です。

接道面から奥行のある敷地 ゆったりとした広がりがあります
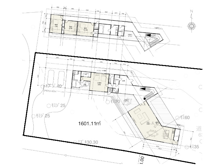
敷地形状図・建築プラン

写真のクリックで その他の画像もご覧になれます

写真のタップで その他の画像もご覧になれます

静けさの保たれた環境です
日照条件もよさそうですね
前面道路は幅員4mの公道です

写真のタップで その他の画像もご覧になれます

物件概要
所在
北佐久郡軽井沢町大字長倉
交通
しなの鉄道 中軽井沢駅より約720m
道路
東側 幅員約4mの町道に接道
用途地域
第一種住居  建蔽率60%  容積率200%
土地面積
1,628.97㎡(492.76坪)
地目
山林
地勢
平坦
設備
公営水道・公共下水・中部電力・LPG
建物面積
-
構造
-
間取
-
建築年月
-
高さ制限
10m以下・2階建て以下
後退距離
道路後退2m・隣地後退1m
権利
所有権
取引態様
媒介

備考

  • 道路管理費あり
  • 公営水道(敷地内引込ありΦ20㎜)
  • 長野県景観条例及び軽井沢町自然保護対策要綱適用
  • 本資料と現況が異なる場合は現況を優先致します
お問い合わせフォーム

下記フォームに必要事項を入力後、確認ボタンを押してください。

不動産名称
価 格
タイプ
ご用件
お名前 ※必須
ご住所
電話番号(半角)
Mail(半角) ※必須
連絡方法 Eメール  電話  いずれも可
お問い合わせ内容

 

※上記の個人情報に関して、ご本人の同意なく、物件紹介以外の目的に使用することはございません。

会社名 ページ先頭へ

本社  東京都千代田区二番町5-2-305
TEL.03(6256)8822・FAX.03(6256)8567
支店  長野県軽井沢町軽井沢東7-22
TEL.0267(42)4111・FAX.0267(42)3155

SANWA GROUP since1967

Copyright ©2000- Sanwa Jisho. All Rights Reserved.