Breeze on your tender fields Karuizawa.

白樺台別荘地

15,000万円

豊かな自然に囲まれ静かに過ごす、そして別荘ライフを存分に楽しむ――。
ここなら、きっとご満足いく時が過ごせるでしょう。

利便性が高く 軽井沢の四季を通年満喫できる豊かな自然に囲まれた邸宅です
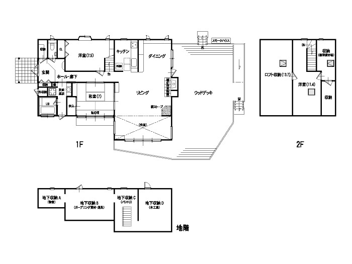
建物平面図・敷地形状図

写真のクリックで その他の画像もご覧になれます

写真のタップで その他の画像もご覧になれます

リビングは増築もされ広々とした空間
北側に配置された主寝室は7.5帖
森林浴で寛ぐ 約50帖のウッドデッキ

写真のタップで その他の画像もご覧になれます

物件概要
所在
北佐久郡軽井沢町大字長倉
交通
北陸新幹線 軽井沢駅より約4.1km
道路
北側及び西側 幅員4mの道路に接道
用途地域
第一種低層住専  建蔽率20%  容積率20%
土地面積
1359㎡(411.1坪)
地目
山林
地勢
平坦
設備
公営水道・浄化槽・中部電力
建物面積
123.6㎡(37.38坪)
構造
木造合金メッキ鋼板ぶき2階建
間取
3LDK
建築年月
H21年6月
高さ制限
10m以下・2階建て以下
後退距離
道路後退5m・隣地後退3m
権利
所有権
取引態様
媒介

備考

  • 平成24年6月に吹抜付き音楽室増築(未登記)…現況延床面積 175.06㎡ (52.95坪)
  • ウッドデッキ横に手づくりのツイン式スモークハウスあり(温燻・冷燻)
  • 薪置き場・フラワーガーデン・和風庭園・ウッドデッキ・屋内の全照明はLED化
  • 暖炉・薪ストーブ・床暖房・エアコン3台・ルームドライヤー2台
  • キッチン:HIクッキングヒータ・食洗機・昇降式食器乾燥機
  • 浴室:テレビ・暖房乾燥機
  • ロフト:約14帖の広い小屋裏収納もあり
  • 地下階:地下パントリー等4室あり(天井高190㎝)  キッチン床及び屋外への出入口あり
  • 外壁:光触媒自動洗浄機能付きサイディング(メンテナンスフリー)
  • 駐車場:6~7台の駐車が可能
  • 長野県景観条例及び軽井沢町自然保護対策要綱適用
  • 本資料と現況が異なる場合は現況を優先致します
お問い合わせフォーム

下記フォームに必要事項を入力後、確認ボタンを押してください。

不動産名称
価 格
タイプ
ご用件
お名前 ※必須
ご住所
電話番号(半角)
Mail(半角) ※必須
連絡方法 Eメール  電話  いずれも可
お問い合わせ内容

 

※上記の個人情報に関して、ご本人の同意なく、物件紹介以外の目的に使用することはございません。

会社名 ページ先頭へ

本社  東京都千代田区二番町5-2-305
TEL.03(6256)8822・FAX.03(6256)8567
支店  長野県軽井沢町軽井沢東7-22
TEL.0267(42)4111・FAX.0267(42)3155

SANWA GROUP since1967

Copyright ©2000- Sanwa Jisho. All Rights Reserved.